918博天堂·[中国]官方网站
咨询电话:13029991151
固定电话:+86-451-82323452
400 电话:400-722-8808
电邮:htgf@hontop.net.cn
邮编:150070
网址:www.hontop.net.cn
地址:哈尔滨市高新技术产业开发区迎宾路集中区鄱阳东路1号
第一部分
PART ONE
产品介绍

01
Sewage lifting
equipment

我公司研发的地下建筑物污水排放专用设备,其过滤反冲洗式排污技术获得国家zhuanli,该项技术开创了国内地下排污领域的先河,引领国内地下建筑物功能设计。产品技术先进,使污水中的杂物与排水泵的叶轮不接触,并利用水泵的压力水流对过滤装置内的杂物进行冲洗,无需人工清掏。设备封闭式运行,保护使用环境不被污染。设备配有防返冒装置,能够避免因止回阀关闭不严而引发的污水返冒问题。根据地下卫生间产生的污水流量的不同分为单过滤系统、双过滤系统和多过滤系统,充分满足不同使用场所的需要。
918博天堂公司在上述研发技术的基础上,开发了污水排放专用设备的三代产品,其特点:
液位控制是利用霍尔传感器(zhuanli技术200720117203.4)检测磁场变化,控制设备启停。解决了传统液位控制(浮球、信号线)和生活污水直接接触而引发的控制失灵,进而引发设备误动作或不动作。
过滤反冲洗技术(zhuanli技术200920100920.5)彻底解决了柔性物质缠绕水泵叶轮,造成水泵电机烧毁的问题。其全封闭运行,不产生臭味污染环境。杂物不与水泵的叶轮接触,不缠绕水泵。设备工作时,压力水泵将过滤装置内的杂物带出,无需人工清掏杂物。全自动运行,控制系统(zhuanli技术200730129697.3)可提供干接点。
在过滤反冲洗的基础上,增加了软物质处理系统,彻底解决了卫生间生活污水可能有的条状、网状物(棉纱、绷带、拖布条)堵塞反冲洗装置,进而引发污水反冒的问题,保证了业主公共环境的清洁、卫生。
入水止回阀(zhuanli技术201020286070.5)、过滤反冲洗装置及设备的储水箱采用集成设计理念,便于拆装。


适用领域:建筑物污水无法顺排,需要进行提升排放的场所。
设备原理:生活污水进入污水提升设备后,经进水布水器进入到过滤反冲洗装置内,过滤装置将杂物分离在过滤桶内,污水经水泵进入到箱体。当箱体内水位达到设定的排水水位时,1#排污泵启动,1#进水止回阀关闭,出水止回阀打开,泵将箱体内污水与过滤桶内杂物提升到室外化粪池内。当水位达到水位底限时,排污泵停止,出水止回阀关闭,1#进水止回阀打开。当箱体内水位再次达到设定的排水水位时。2#排污泵启动,2#进水止回阀关闭,出水止回阀打开,泵将箱体内污水与过滤桶内杂物提升到室外化粪池内。双泵交替使用,互为备用。当水泵出现故障不启动时,水位达到设置的超限水位,电控柜发出声光报警,另一台水泵启动,并锁定单泵运行状态,设备维护维修完成故障解除,报警自动解除,设备恢复正常运行。
01
污水提升设备技术特点:
① 污水封闭式运行,不污染环境;
② 过滤防返冒功能;
③ 污水中杂物与水泵叶轮不接触,不堵塞或缠绕水泵叶轮;
④ “过滤”与“反冲洗”设计理念,无需人工清掏杂物或沉淀物;
⑤ 电磁感应液位控制,提高系统稳定性;
⑥ 全自动运行,无需人工执守;
⑦ 成套设备,提供监测“干接点”,便于设备的管理。
02
产品描述
产品名称 | WSP系列新型污水提升设备 |
产品材质 | SUS304不锈钢 |
工作原理 | 过滤反冲洗装置+潜污泵 |
产品结构 | 一体化便拆式结构 |
产品耗电 | 380V±10% 50Hz±5% |
产品组成 | 进出水系统、分水系统、进出水止回阀系统、固液分离系统、反冲洗系统、出水截止球阀、提升系统、换气系统、液位控制系统、智能控制柜 |
03
设备性能参数

04
设备产品流程示意图

05
设备安装方式
WSP系列污水提升设备采取坑内,坑外两种方式进行安装!

地面安装

坑内安装(需辅助泵系统)
06
设备功能优势
①反冲洗:“过滤”+“反冲洗”设计,无需人工清掏杂物或沉淀物;
② 隔离性:杂物与水泵不接触,延长水泵使用寿命;
③全封闭:污水封闭式运行,不污染环境;
④ 自动化:全自动运行,无需人工执守;
⑤便拆式:采用便拆式组成部件,可以30分钟快速维修;
⑥ 寿命长:材质选用不锈钢SUS304,20年质量的保证;
⑦过滤防反冒功能:避免设备因为意外堵塞造成反冒,污染设备间;

07
设备核心技术

08
技术标准
(1)《建筑给水排水设计规范》(GB50015-2003)
(2)《污水排入城市下水道水质标准》CJ/T380-2011
09
设备功能
(1) 单台设备的处理流量、扬程、运行功率等参数详见设备数量表。设备形式:一体化成套设备;介质流动方式:自由落差重力流;
(2) 不锈钢污水提升设备配置:包括集水箱、排水泵、浮球开关、固液分离装置、反冲洗装置、止回阀、分水盒、多功能安全回流装置、配套管道及管件、辅泵、智能控制柜、槽钢底座及附件等;设备进水管采用水平接口,排水管采用法兰式对接。
(3) 不堵塞:设有固液分离装置,能拦截污水中的较大的固体杂物,水泵叶轮不接触杂物,不会造成缠绕与堵塞,延长其使用寿命在过滤反冲洗的基础上,增加了软物质处理系统,彻底解决了卫生间生活污水可能有的条状、网状物(棉纱、绷带、拖布条)堵塞反冲洗装置,进而引发污水反冒的问题,保证了业主公共环境的清洁、卫生。
(4) 无污染:水箱采用全密封的活动顶盖设计,污水在密封的状态下储存与排放,不外溢,无臭。
(5) 无沉淀免清掏:独特的反冲洗装置,能随时有效地冲洗水箱内沉积物,确保水箱内自动保持清洁,无沉积物沉积,避免日常清掏。
(6) 泵选用国内一线品牌大元泵业。电机选用国产一线品牌,性能:防护等级:IP68,绝缘等级:F级;轴承选用进口精密轴承,密封采用机械密封。
(7) 电气控制部分:
电源:进线电源为三相五线制,额定电压380V,容量满足两台水泵以及加热装置的同时运行要求;
电气控制方式:采用液位浮球自动控制(液位控制是利用霍尔传感器(zhuanli技术200720117203.4)),设有超限水位声光报警功能,手动控制和自动控制两种方式;
控制功能描述:根据水位高低自动控制两台泵的启停,两台泵轮换运行、互为备用,当其中一台发生故障时另一台自动启动;
报警信号功能描述:当1#泵或2#泵发生故障(过载保护动作)对应的信号指示和蜂鸣器发出故障指示和声光报警信号,超高水位时,蜂鸣器发出声音报警信号;设备接地:控制箱、水泵电机和金属穿线管须可靠接地并做好等电位连接,以保证使用安全和符合国家标准。
(8) 控制柜可对漏水、缺相、过载、短路等进行自动保护。
(9) 控制柜有电源指示灯及开关,每台水泵工况(启、停、故障)指示灯及开关、水位指示灯、手/自动状态指示灯及切换开关。
(10) 设备水箱、阀门采用SUS304不锈钢材质,设备水箱采用SUS304不锈钢材质平板焊接而成,箱壁、箱底板厚度2mm,箱盖厚度1.5mm,含有提手和搭扣,便于检查维护;隔油器箱体焊缝应平整,表面无毛刺,无碰撞凹陷现象;与箱体相连的进水管、出水管、通气管、放空管及连通管等材质应与箱体材质一致。
(11) 设备装配:焊接件及安装的焊接部位的焊缝应牢固、光滑美观、无假焊、漏焊等缺陷,焊渣与药皮应清除干净。各连接部位应牢固可靠,紧固件无松动,各管道、电气元器件及线路等应布置整齐合理。

02
坑内四泵隔油
提升设备
Four pump oil separation lifting equipment in pit

FPS系列餐饮废水高效隔油器设备是918博天堂·[中国]官方网站
专门针对中国餐饮废水的水质特性,自主研制开发的基础型隔油专用设备。它的结构简单,箱体整体采用304不锈钢,防腐耐用,阀门与管路均为不锈钢,避免了管道腐蚀。该设备采用全封闭设计,通过换气管与室外进行换气,避免了设备内的气味对场地的造成的空气污染;将杂物、污油、污水进行了分离,避免了泵与杂物、污油的接触,大大延长了水泵的使用寿命;采用自耦安装潜水泵,水泵放置在水箱内,便于水泵的检修与更换。
适用领域:各类饭店、酒店、食堂等餐饮场所的餐饮废水处理。
设备原理:设备箱体共分三个腔体。其中,第一个腔体为残渣过滤腔,厨房间含油废水经排水明渠或排水管道进入设备除渣隔油箱后,经隔板将悬浮的残渣隔挡在第一腔室,较大残渣经提篮式过滤装置与液体分离,细小残渣进入下方沉淀室内,经过7~15天分解成为浊液,经搅匀泵搅匀,排渣泵提升至室外;提篮式过滤装置内的杂物很据用户的使用情况定期倾倒处理;
经过沉淀过滤后的含油废水进入第二腔室,进行油水分离处理;含油废水经导流板及隔板分层利用比重法浮油上浮在排渣隔油箱液面上。箱体可选配电加热与流油口装置:涡旋式电加热系统,能够恒温控制油层温度,使油脂保持液体便于排出;流出口采用zhuanli技术蛇形流油口,利用其虹吸原理更加高效排油,用户只需打开流油口下方排油阀,即可实现排油;
经过除油后的废水进入设备的第三个腔体中,第三个腔体内采用自耦器安装2台潜水排污泵,利用电磁液位计(zhuanli技术:200730129697.3)通过设备电器控制柜控制2台水泵轮换启动,对腔体三中的废水进行提升排放,设备配套便于维护的单向止回阀门(zhuanli技术:201520924235.X)使管理更便捷。
01
产品描述
产品名称 | HTGY(QP)-FPS系列 |
产品材质 | SUS304不锈钢 |
工作原理 | 导流板及隔板分层利用油水比重隔油 |
产品结构 | 密闭一体化设备 |
产品耗电 | 380V±10% 50Hz±5% |
产品组成 | 进出水系统、固液分离系统、除渣系统、搅匀系统、沉泥系统、除渣系统、隔油系统、除油系统、液位控制系统、提升系统、换气系统 |
02
设备性能参数:

03
隔油提升设备技术特点:
●结构简单,占地空间合理;
● 全不锈钢材质,美观大方;
● 全封闭结构,无异味外泄;
● 配套废水提升功能,采用电磁感应液位控制装置;
● 水泵自动运行,无需人工操作;
● 安装简单,运行自动化,维护方便。
04
设备功能优势:

搅匀除渣装置:
设备配置带搅匀功能的不锈钢污泥水泵,对污水残渣进行搅匀,较大杂质被除去,杂物更细小,降低残渣引起的设备故障几率,自动排放搅匀后的残渣到沉泥装置进行深化处理。
沉泥装置:
深化处理搅匀后的细小残渣,细小杂质在重力作用会随水流自然沉淀于底部的沉泥装置中(918博天堂专属:深化沉泥技术)

03
VS小型隔油器
Small oil separator



产品实例照片
VS新型油水分离器为我公司针对现市场需求,设计开发的适用于厨房洗菜盆或者灶台下方的专用油水分离设备。
01
产品描述
产品名称 | VS系列 |
产品材质 | 不锈钢 |
工作原理 | 油水比重法+旋钮除油 |
产品结构 | 密闭便携式 |
产品耗电 | 无 |
产品组成 | 进、出水系统、固液分离系统、隔油系统 |
箱体尺寸 | 600×350×300mm(洗菜盆下) /400×350×250mm(灶台下) 可根据现场实际空间定做 |
02
隔油设备技术特点
●结构简单,占地空间合理;
● 全不锈钢材质,美观大方;
●全封闭结构,无异味外泄;
● 安装简单,维护方便。
第二部分
PART TWO
01
项目基本情况
现场情况为:
① 卫生间:蹲便器1个,小便器1个,洗手盆3个,淋浴器4个;
② 厨房:单格洗菜盆7个,双格洗菜盆8个,灶台水嘴14个,蒸汽发生器7个,;
③ 默认电源电压380 V;
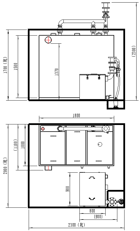
④ 设备坑尺寸:2000×2300×1700mm,需配备辅助泵系统,坑内设最小400x400x200辅泵坑。
02
设备选型
(1)污水提升设备流量计算
根据国标GB50015-2003(2009年版)《建筑给水排水设计规范》所给定的卫生器具排水流量数据,其中:

根据标准4.4.5,管道排水秒流量公式为:

其中:
——计算管段污水设计秒流量(升/秒);
——计算管段的卫生器具的排水当量总数;
——计算管段上最大的一个卫生器具的排水流量(升/秒);
——系数取值为2.5;
本项目中:

取整为:Q=10 m³/h
(2)隔油提升设备流量计算
宿舍(Ⅲ、Ⅳ类)、工业企业的生活间、公共浴室、洗衣房、职工食堂或营业餐馆的厨房、体育场馆、剧场、普通理化实验室等建筑的生活管道的排水秒流量计算按照下式,
用水洁具排水的流量、当量:

用水洁具同时用水百分数:

其计算公式按:

其中:
——计算管段污水设计秒流量(升/秒);
q0——同一类型的一个卫生器具的排水流量(升/秒);
n0——同一类型卫生器具数量;
b——卫生器具同时排水百分数;

取整为:Q=45 m³/h
技术要求并结合918博天堂产品的技术特点,宜选用的设备型号为:

注意:
①两台设备放置在一个设备坑内,故需一台辅助泵即可。
②因设备坑尺寸有限,故隔油提升设备按照坑尺寸最大设计;
③为保证隔油效果,建议在洗菜盆和灶台下方安装小型隔油器。
第三部分
PART THREE
01
设备技术参数及指标

因坑尺寸与进水管高度限制,隔油提升设备依照现有安装条件最大尺寸设计。
02
设备尺寸图


坑内布置示意图

第四部分
PART FOUR
01
施工要求
(1)结构要求:
设备整体进场,应预留设备进场通道和安装空间。
(2)电气施工要求:
污水提升设备的电控柜需配三相五线制交流380V电源,容量以满足主水泵和辅助排水泵同时启动为宜。
02
方案提供单位
918博天堂·[中国]官方网站
03
单位地址
哈尔滨市道里区群力迎宾开发区鄱阳东路1号
918博天堂排水简介
918博天堂·[中国]官方网站 ,成立于1999年,是国家级高新技术企业,公司坐落于哈尔滨市高新区鄱阳东路1号;是国内“过滤反冲洗式污水提升设备”(“对含有块状物流体输送装置”zhuanli号:ZL98238575.7)的发明者与此行业的缔造者,是国内第一家生产污水提升设备的专业厂家,提前迈出了从“中国制造”到“中国创造”的坚定步伐。新型污水提升设备被评为“高新技术产品”,拥有包含“污水提升设备”“餐饮油水分离设备”在内的多项发明zhuanli,近百余项自主知识产权,是行业内第一家上市公司(股票代码430537)。
918博天堂股份通过了“武器装备质量管理体系认证”,参与大型舰船军品研发,产品已应用成功并取得军方认可,随着尖端军品制造技术介入民用产品,使民品的品质与产能得到强有力的保障。多年来918博天堂致力于“生活污水提升设备”和“餐饮油水分离设备”的研发与生产,以“舍我其谁”的态势站在行业技术的巅峰。918博天堂首创的“地下室反冲洗式污水提升设备”,已被作为行业标准,纳入行业名录。918博天堂专注自主科技创新,决不“泊来”。
918博天堂股份身为“高新企业”,以“军工底蕴”投身“科技环保”,实现企业价值,为自身正名。


